IBRF
Ingenieurbüro für Bauwesen
Suchen
Hauptmenü
Zum Inhalt wechseln
Start
Leistungen
Leistungen Übersicht
Tragwerksplanung
Architektur
Projektentwicklung
Energieberatung
Gutachten und ZIE
Projekte
Projektübersicht
Aktuelle Projekte
Archiv
Wohnungsneubau
Übersicht
Bornitzstr./Heringer Str.
Karl-Weiß-Str.
Schönholzer Weg
Chausseestr.
Lessingstr.
Wagnerstr.
Albert-Wiebach
Dregerhoff
Goethe 50
Rudolf-Breitscheid
Archenhold
Goethe 46
Massower
Konrad-Zuse
Wendenschloß
Goethe 22
Bützow
Elfriede-Kuhr
Blumberger
Beethoven 4d
Düsseldorfer
öffentliche Bauten
Übersicht
Ambossweg
Karl-Weiß-Str.
Kita Germendorf
Volkrad
Sportmensa
GSS Zepernick
Normannen
Panketal
Rüdnitz
KW Rostock
Plus
Hamburg
Leegebruch
Plattenbau
Übersicht
Groscurth II
Mahlower
Franz-Schmidt
Walter-Friedrich
Sella-Hasse
Bornitzstr.
Dolgensee
Trusetaler
Zingster
Astronomen
Brodowiner
Beethoven
Bruno-Apitz
Cecilienstr
Groscurth
Blumberger
Schulze-Boysen
Osterburg
Friedrich-Richter
Gießen
Wolfgang-Heinz
Altbau
Übersicht
Kunsthaus
Schliemannstr.
Motzstr.
Galvanistr.
Brunnenstr.
Schillerstr.
Kontakt
Kontakt
Mitarbeiter
Stellenangebote
Impressum
Datenschutz
Bilder-Navigation
← Zurück
Weiter →
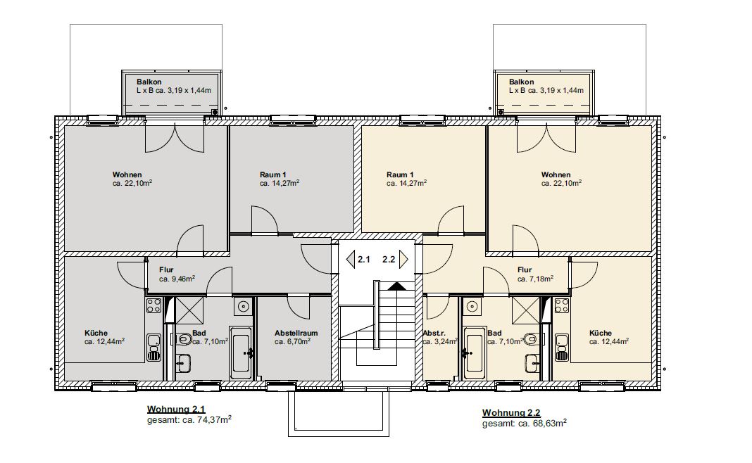
Unbenannt
Veröffentlicht
30. Juni 2016
mit
1068 × 658
in
Unbenannt